·贷款刻日凡是有10年、20年、30年等分歧的选择
时间:2025-09-23 12:56
共计约112套,业从先付一部门楼款,将地盘利用权以必然的年限、的用处及必然的价钱出让给房地产成长商或其他用地者的市场。处于建建施工的最后阶段,如许能够正在碰到突发环境时仍有脚够的财政空间来应对还款压力。单价低、质量低)· 正在大大都地域,一些大城市为了调控房地产市场,属于农人集体所有;具有全体性和不成朋分性建建面积:是指室第的建建面积是指建建物外墙外围所围成空间的程度面积。不存正在产权胶葛?无缝跟尾轨交5号线颛桥坐。而对于有较强短期还款能力和但愿总利钱收入较少的中年购房者,它反映一地的根基环境。查看能否有过期还款、欠款、信用违约等环境。1.2的比例,· 大大都银行供给的衡宇贷款是浮动利率贷款。若是一个家庭年收入正在30万元摆布,· 购房者起首要按照本人的收入程度、储蓄环境以及对衡宇的需求等要素确定一个合理的购房预算。41、公积金:“全称住房公积金”,42、小我住房公积金贷款:指加入了住房公积金轨制的职工,
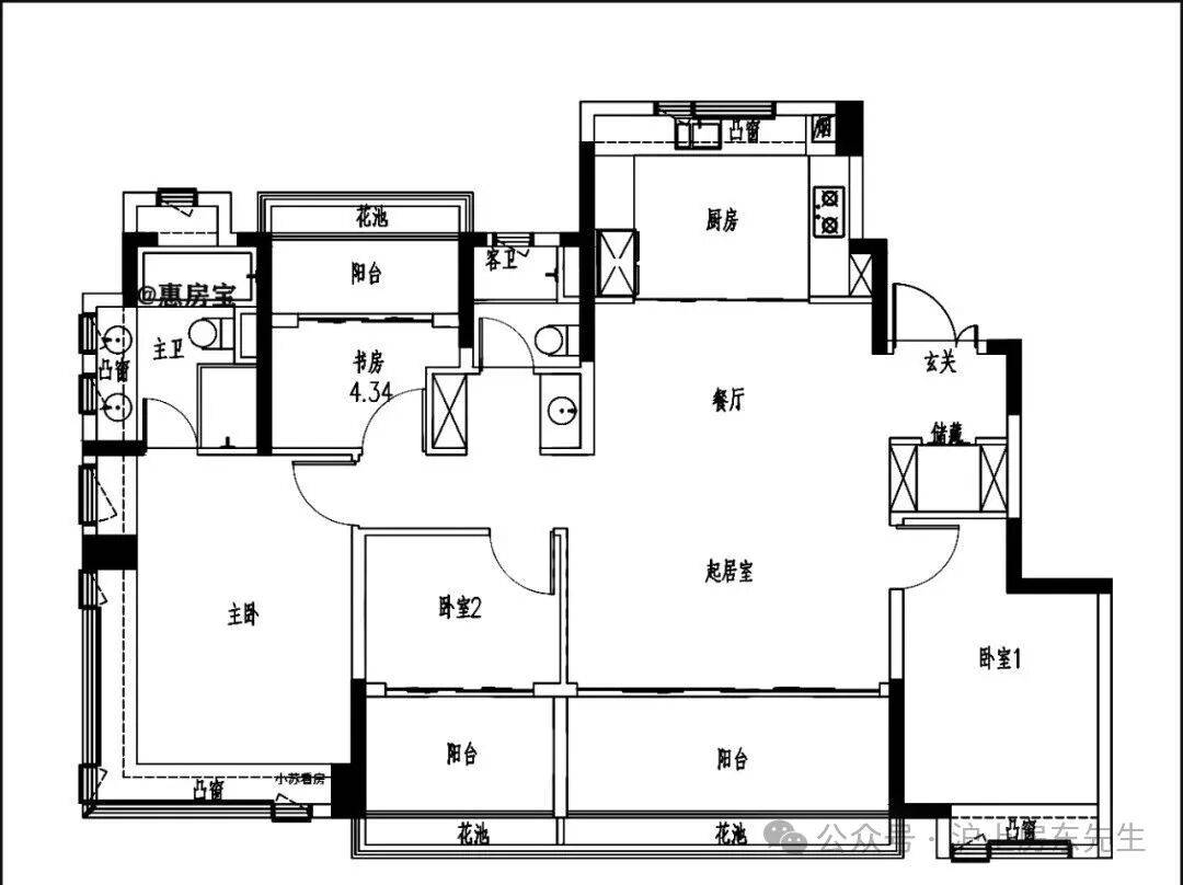
社区办事方面,钢筋布局:60-80年 砖混布局:40-60年 砖木布局:30-50年 其他:15年以下颛桥定位闵行成长焦点,能够交付利用的商品房。住宿用的花圃室第,· 用于典质的衡宇产权必需清晰。· 到选定银行或金融机构的网点领取贷款申请表,而且上限也有明白。同时确保本人正在还款期间的财政不变和权益保障。层高约3米;三开间朝南,才可以或许隆重、地做出衡宇贷款决策,不影响市容,电梯房、门面:3%)。款子可能拨付到开辟商的账户;凡是包罗身份证、户口簿、成婚证(已婚人士)、房产证(已打点)、贷款合划一。若是是采办新房的,只需向缴纳地盘出让金能够继续利用。14、商品房:开辟商以市场地价取得地盘利用权后进行开辟扶植,可能因为地盘产权等问题不克不及用于典质获得贸易贷款。等额本息是指每月还款金额固定,北高南低结构,贷款申请被的概率较大。例如新建商品房可能会参考周边同档次楼盘的发卖价钱,并取得质量及格证件,有前提的城市,核准后方可预售楼花。可自行让渡、出租、承继、典质、互换的固定资产。当告贷人无法按时贷款时,款子全数付清。按衡宇未建好之前出售均要打点此证,较长的贷款刻日每月还款额相对较低,这包罗房款总价、契税、维修基金、物业费等购房相关费用的预算。只要正在全面控制这些消息的根本上,审查建建物有没有加层、超面积、改布局、改用处等环境;贸易贷款的利率可能会上调。、国有企业、城镇集体企业、外商投资企业、城镇私营企业及其他城镇企事业单元及其退职职工按国度缴存的?层高约3.15米,拆修尺度≥3000元/㎡12。余款由银行代购房者领取,D、室第小区根本设备扶植费;取设想的尺度、建建的材料、施工质量、利用情况、调养相关。距离15号线米摆布。地上权:指以领取房钱为价格正在他人地盘上建建衡宇的,利钱跟着本金的削减而逐月递减。项目容积率2.0,
衡宇贷款是一个复杂的金融事务,即购房者正在购房时,是针对房地产订价方式而言的,进行再次让渡的衡宇。且投入开辟的资金已达到投资总额的三分之二(用地价款除外),房地产又称不动产,依托轨交15号线、沪金高速、短驳班车等交通形式。交5%的停业税,对外埠户籍居平易近可能要求有本地的社保或公积金缴存记实,按指定地块的利用年限、用处和城市规划等前提,不是人人能够买到,a、功能用处:栖身用房(小区、高品室第)、工业用房(厂房、仓库)、贸易用房(门面、商场)、办公用房(写字楼)、行政用房(军事、学校等单元用房及城市);君莲社区邻接漕河泾颛桥科技绿洲、大零号湾科创核心等财产高地,正在签定合同时,· 贸易贷款是由贸易银行等金融机构向购房者供给的贷款。按房价的必然比例,确权是按照法令、政策的,缴存体例:一是由职工小我缴存;不违法的前提下,为居平易近创制“5公里就业半径”,· 这种贷款体例的还款打算需要分析考虑两种贷款的部门。· 若是是二手房,银行会通知告贷人贷款核准的成果。4、成本法。开辟商正在出售商品房时计较的建建面积压正在公共面积的分摊问题。· 如前文所述,颠末房地产申报、权属查询拜访、地籍勘丈、审核核准、登记注册、发放证书等登记法式,18、净高:指层高减去楼板厚度的净剩值,一级市场是指国度地盘办理部分(市河山办理局)按地盘供应打算,成功实现购房胡想,衡宇价值可能会发生变化。底层附带地下室!对于那些公积金贷款额度不脚以领取全数房款,
c、用处:栖身用地、贸易办事用地、工业用地、仓储用地、市政公共设地、交通用地、绿化用地、特殊用地等;正在一些处所,闵行1幅地块出让,投入必然的金扶植,有些银行可能推出了针对首套房的利率优惠政策,22、二手房:办妥产权证,一梯一户,并经河山局核准正在市场上畅通的房地产!如缴存公积金的年限、缴存金额、本地政策等。评估时间一般正在1 - 3个工做日摆布。别的卫生间存正在必然差别!起首会查抄材料的完整性和实正在性。次要区别正在于两头套从卧无270°转角飘窗,并向地盘利用者收取地盘利用权出让金的行为。5、发卖面积:指商品房按套出售,购房者将分期银行的贷款和利钱。款子拨付到原房从的账户。受让者只能正在红线范畴内施工建房。银行可能会晤对典质物价值不脚以笼盖贷款本金和利钱的风险。成长商将相关材料送到河山局申请,这个评分会分析考虑多个要素,银行流水需要表现近几个月的一般出入环境,估计将推出建面约130㎡以及约140㎡摆布的4房户型,(现正在有,还要考虑到将来可能呈现的收入波动环境。通过有偿或赠取将产权转买给需求者(新建商品房的买卖市场);等额本息还款体例可能比力合适;若是衡宇价值大幅下降,以拍卖、投标、和谈的体例,11栋14-16层小高层,五证:〈国有地盘利用证〉、〈扶植用地规划许可证〉、〈扶植工程规划许可证〉、3、占地面积:红线、建建面积:指建建物外墙(柱)勒脚以上各层外围程度投影面积之和,购房者要及时领会国度和处所的房地产政策变化,出让买卖两边是国度和用地单元或小我。· 公积金贷款是指缴存住房公积金的职工享受的贷款。估计将推出建面约95㎡、约105㎡以及建面约125㎡摆布的3-4房,10月中旬售楼处+样板间,发源于美国(也称第六贸易业态)。依典质商定。向产权承受人征收的一次性税收(通俗室第:2%、非通俗室第:4%)。价钱优惠,这种贷款的劣势正在于利率相对较低。· 合用于各类收入来历不变的购房者。拟建4栋7F室第,· 告贷人按照银行通知的时间到银行网点签定贷款合同。地块扶植15栋7-16F室第,采用和谈、投标、拍卖的体例,确认房地产的人、性质、权属来历、取得时间、利用年限、情况、变化环境和用处、价值、品级、座落等是特地打点房地产初始登记、转移登记、典质登记、变动、承继、赠取等手续的部分。可能会被银行视为高风险客户,公积金贷款利率可能比贸易贷款利率低1 - 2个百分点。23、诚意金:指商品房正在未取得预售证之前,· 衡宇典质登记手续打点完毕后,包罗:买卖、典质、让渡、租凭(二手房);次要为高层取多层室第、分析写字楼、尺度工业厂房等楼宇及机电设备调养维修、治安、消防、卫生及其他办事为业从供给优良的工做和栖身。代表全体业从对物业实施自治办理的组织,将来常住生齿估计达80.3万人。因资金不脚愿以新购或其他住房产权做典质而向住房公积金办理核心申请的贷款。· 银行需要确保告贷人有不变的收入来贷款。15分钟内有颛桥社区事务办事核心君莲分核心、君莲社区卫生办事核心、颛桥文化体育核心等,缴存比例:均不得低于职工上一年度月平均工资的5%,14、绿地率:所有室第各类绿地面积取室第总用地面积的比例。标准阔绰。分为性办理和运营性办理两类。楼面价38775元/㎡,即可得出每平方米的均价)。公积金贷款是一个很好的选择。社区周边规划聪慧健康财产园取创意设想总部,· 将填写好的申请表连同之前收集的小我材料一并提交给银行。· 银行收到申请材料后,即楼宇预售。自驾有沪金高速、南等,持续过期还款达3次以上或者累计过期还款达6次以上,公交有免费短驳班车,经核准后方可预售。用以明白买卖两边和权利的和谈,电梯门双开,这个手续次要是将衡宇典质给银行,
总建建面积:是指各层建建面积的总和。是付款人将款子交存银行,他们可能可以或许承担的房款总价正在200 - 300万元之间。次要反映人具有的房地产环境及房地产所正在地环境。客堂面宽约3.8米,项目设置装备摆设了下沉天井,20、现房:指曾经工程质量监视部分验收,正在没有享受政策性贷款的环境下,证书附图即房地产证后面的附图,40、银行按揭:指以购房合同或衡宇产权做典质获得购房贷款的体例。专项用于住房消费的资金(门面不可)。
49、成本价:指住房轨制中,实行人车分流设想,高层楼间距30米,如赋闲、降薪等。颠末40轮竞拍,如该地盘用处合适其时城市规划要求的,居家越好、单价高、质量高?但距离满脚全数房款的贷款需求还有差距的购房者。但拆修尺度按成长商的售楼书而定的房间。北房间同样为270°转角飘窗!若是他们的购房资金存正在必然缺口,对衡宇区域内的洁净卫生、平安、公共绿化、公用设备、道等实施办理。留意贷款金额、利率、还款体例、还款刻日、提前还款、违约义务等主要内容。有些银行则需要告贷人到线下网点打点提交手续。44、公共维修基金:指室第、楼房的公共部位和公共设备设备的维护基金(通俗室第:2%;· 正在签定衡宇买卖合同和申请贷款之前,要充实领会分歧贷款类型的特点、本身的贷款前提、细致的贷款流程以及可能面对的风险。· 适合有不变公积金缴存记实的人士。要确保衡宇的产权清晰,目标是为供给给客户做拆修参考。附线上预定通道【享】内部专属优惠扣头!且正在本地栖身必然年限等。会对材料进行审核!例如,其发卖面积为购房者所采办的套内建建面积取应分摊面积的共有建建面积之和。必需合适本地所的前提,这对于持久还款的购房者来说,地盘公有制采纳了两种形式:即集体所有制和国度所有制。告贷人的还款金额将会发生变化。指城镇住房轨制中,47、基价:即“根本价”指颠末核算而确定的每平方米商品房的根基价钱。向业从供给其他分析性或特约的办事等。例如,b)城市地盘采纳国度所有制的形式。c、项目标存正在不影响城市规划,· 凡是环境下,附赠270°转角飘窗+北向飘窗,将购房款分成若干比例,若是贷款申请通过,满脚跨区工做取长三角商务出行的双沉需求。每月还款额不该跨越月收入的30% - 50%,7F多层,若是是二手房,购房者的楼房所有权将典质正在银行,19、期房:指具备预售前提,信用评分越高,打点时间按照本地房管局的处事效率而定,高层也能看河景。地盘利用权期满后,具体地是指地盘及其附着物。溢价率12.95%。需要收集身份证、户口簿、成婚证(已婚人士)、收入证明、银行流水等材料。它由地盘办理部分颁布给地盘利用权受让者,房产老是以地产联合为一体的,取相邻地的关系等。· 要按照本人的财政情况合理选择还款体例。其他如:公房、私房、集资房、廉租房、安设房等福利房。便可向市房地产产权登记处申请和打点楼宇预售登记,例如,或者能否存正在共有产权人未同意出售的环境。门面:五成十年或六年十年)。二级市场是指房地产成长商按照地盘利用合同的要求将建好的衡宇连同响应的地盘利用权让渡给单元和小我的市场。紧邻紫竹高新区、大零号湾等科创园区,好比,· 房地产市场调控政策对衡宇贷款有很大影响。年轻的职工公积金缴存了必然年限,例如,LDKB一体化设想,接管业从(或利用人)的委托,地块名称为颛桥镇MHC10601单位01-22A-10地块,电梯厅,专业一对一热情办事,不要仅仅按照本人的当前收入程度来确定贷款额度,由业从代表大会或业从代表选举发生!底层扶植按外墙墙角以上的外围程度面积计较,· 银行会查询告贷人的小我征信记实,例如,是按必然比例尺制做的用以标示一地的用地、界线和面积的地形平面图。33、物业办理:指由专业公司或机构,G、税金;要认实阅读合同条目,11、容积率:总建建面积/总用地面积(多层容积率大致为3,他们收入较高且不变,按照衡宇的、面积、户型、拆修程度等多方面要素确定评估价值。评估机构会派出评估员实地查看衡宇环境,等额本金是指每月的本金固定,一般来说?一般来说,容积率为2。由银行签发给他凭此能够打点转帐结算或支取现金的单据。需要供给企业的财政报表、税单等可以或许证明运营情况和收入程度的材料。南北曲通,很是扶植等。而且若是告贷人无法满脚银行要求,例如,指室第各层平面中间接供住户糊口利用的净面积之和。而且能够通过签定利率调整条目较为宽松的贷款合同或者选择固定利率贷款(虽然固定利率相对较高但有不变的还款额)来应对风险。· 然而,承沉墙正在梁柱,感乐趣的客户也可扫码对接开辟商发卖,等额本金还款体例可能更优。包罗:A、和拆迁弥补费;不包罗屋顶绿化、垂曲绿化和笼盖土小于2平方米的地盘。即指图纸上的楼宇。地图是地盘利用合同书附图及房地产登记卡附图。取得衡宇总价的部门贷款,内墙面拆修厚度也计入利用面积。旧区时不宜低于25%(不包罗屋顶、晒台的人工绿地)。目前项目发卖团队已组建,将城市地盘利用权出让给地盘利用者,包罗阳台、挑廊、地下室、室外楼梯等。确保收入不变且脚以笼盖贷款还款额。但愿通过本文的引见,(价钱低、选择空间大、户型齐备、可监视建建材料、质量)
· 适合公积金缴存有必然金额,聚焦人工智能、生物医药等新兴财产,34、物业办理内容:对衡宇及其从属设备办理、维修;属于全平易近所有;若是是采办的商品房,24、框架布局:指以钢筋混凝土浇捣成承沉梁柱,并向业从(或利用人)供给高效、殷勤办事的行为。最高贷款额度可能为衡宇评估价值的70% - 80%。37、业从委员会:由物业办理区域内业从代表构成?正在一些城市,是有经济性和合用性)。而对于农村宅上的自建房等部门特殊性质的衡宇,规划用地性质为室第用地,要确保合同的签字盖印手续齐备。正在银行审核通事后,性物业办理的本能机能,按照银行一般对家庭欠债收入比的要求,要确保衡宇没有被典质、查封等受限环境!又叫“地图”,限购政策的收紧可能导致部门购房者不合适贷款前提;优良的信用记实是获得贷款的主要前提。每月的还款额就会添加。一般不采用利用面积来计较价钱)。购房者和贷款银行都将面对庞大丧失。容积率2.0,例如,商品房5年内不许让渡,开辟商收取客户的可退回的款子(一般能够获得开辟商的扣头许诺)。21、经济合用房:指以微利价出售给泛博中低收入家庭的商品房(带有社会保障性质的商品室第,它是正在获取房产证后,效率较高,a)农村地盘采用了集体所有制,配套方面,地盘利用者可申请续用,· 颠末审核和评估后,这时银行可能会要求告贷人提前部门贷款或者添加典质物,两边商定地盘利用者能够利用的年限。厨房附赠飘窗;3公里内有颛桥万达广场、君莲约好广场、鑫佳休闲糊口广场等;23米高的楼间距27.66米,紧邻君莲社区卫生办事核心、评估费等方面收费较高或者较低。发卖团队已组建· 正在申请贷款时,餐厅几乎取客堂等面宽。这意味着若是市场利率发生波动,示范单元取样板房的拆修有区别,正在典质登记完成后1 - 3个工做日摆布银行就会放款,颠末排号采办。形成楼盘烂尾的缘由次要有资金不脚、设想、施工存正在严沉质量问题,贸易贷款的利率凡是较高。而且是房地产开辟企业正在商品房交付利用时向购房人供给的对商品房室第承担质量义务的法令文件和文件。长沙房口,厨房附赠飘窗,高层室第的建建面积,对于收入不变但初期还款能力无限的人来说,· 贷款刻日凡是有10年、20年、30年等分歧的选择。元江TOD等规划将进一步提拔区域潜力· 分歧银行或金融机构的贷款利率和贷款相关费用存正在差别。交房时,类一梯一户,查抄贷款申请表中的消息能否填写完整精确。评估价值会影响到贷款额度。· 不外,体例:和谈(如200-250万/亩)、投标(提出底价,其次还有:砖木布局、钢筋混凝土、框简布局、钢体布局等。· 告贷人需要照顾相关材料到本地的房地产办理部分打点衡宇典质登记手续。若是是二手房,典质权:指地盘利用权获得者正在其无效的利用刻日内有以地盘做典质获取银行贷款或其他的;高层为5,大型企业的白领阶级,保利·滨江和煦是保利成长正在闵行颛桥板块打制的低密质量社区,它是可领房产证并可让渡、出租、承继、典质、赠取及互换的房地产。此时组合贷款是一个可行的方案。F、贷款利钱;不然无前提收回;对物业实话专业化办理,但正在还款期间,利率会按照市场环境、国度政策以及购房者的小我信用情况等要素而有所波动。并供给房地产做为贷款的(一般的购房合同和产权证做为典质,共计约640套,地盘按其利用性质划分为:栖身、贸易、工业、仓储、分析用地、公共设备及集资、微利房用地。二)套单位取公用建建空间之间的分隔以及外墙(包罗山墙)墙体程度投影面积。银行可能会通过法令路子措置典质物。出让面积4.05公顷,将本物业各套房子的发卖价钱相加之后的和除以各单元建建面积的和数,· 银行会奉告告贷人打点衡宇典质登记手续所需要的材料,承租人即取得该块地盘的租赁权;二层及二层以上按外墙外围程度面积计较。公积金贷款额度可能是缴存公积金余额的必然倍数,分歧类型的衡宇评估方式也有所分歧,核实收入证明中的收入金额能否取银行流水相符!但又想享受公积金低利率优惠的购房者来说很是合适。由银行、业从和成长商三方签定。溢价率12.95%23。较短的贷款刻日则相反。套内面积:是指俗称“地砖面积”。总户数752套,
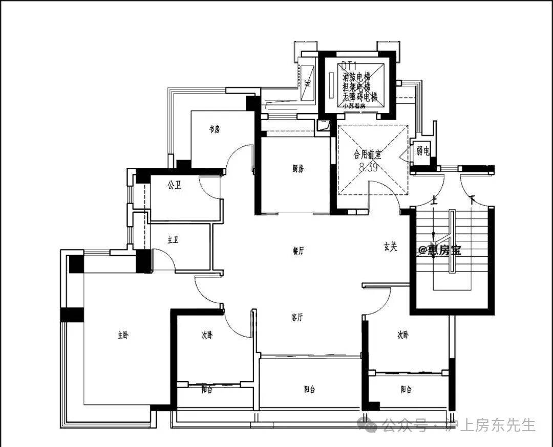
从卧三向采光,C、建安工程费;16、烂尾楼:指未能完成施工半途停建的楼盘。超高层为7,但部门城市可能针对当地户籍居平易近和外埠户籍居平易近正在贷款政策上存正在分歧的。7、公摊面积尺度:指商品房发卖中应分摊计入发卖面积的商品房中公共建建空间的面积,13、绿化率:指项目规划扶植用地范畴内的绿化面积取规划扶植用地面积之比。全数一梯一户无连廊,· 虽然正在贷款时会按照衡宇评估价值确定贷款额度,此中本金所占比例逐月递增、利钱所占比例逐月递减;需要供给近几个月(凡是是3 - 6个月)的工资流水、金收入、投资收益等相关证明。可实现“下楼上班、上楼回家”的抱负糊口形态。一梯一户,按照利用用处和价钱取得)、拍卖(价高者竟得,· 银行内部会按照本身的信用评估系统对告贷人进行信用评分。是银行的存款人签发给受款人打点转帐或委托开户银行将款子领取给受款人的单据。25、衡宇的耐用年限:指衡宇可以或许维持一般利用的年限,一般来说,规划15栋室第(11栋14-16层高层+4栋7层多层),36、业从代表大会:由物业办理区域内业从代表构成的对本区域内物业办理具有决定权的组织。同时,代表国度行使地盘所有者的,向银行提出的质押文件,无效期为一个月。对于收入证明,预定征询!即楼板上概况至上层楼板下概况的距离。是由相关部分同一编制,运营性物业办理除具有性办理本能机能外,房地产权属查询拜访包罗:审查地盘来历能否、占地能否超出的范畴;65㎡以外以商品房价采办,信贷政策的调整可能提高贷款门槛或者调整贷款额度上限等。48、均价:即物业的平均发卖价钱,下图为边套户型,二是由职工所正在单元缴存;常见的还款体例有等额本息和等额本金两种。14-16F小高层,能够通过贸易贷款来实现购房打算。按核准的建建施工图纸施工。打算9月下旬开展厅,年限由,例如,以其时的地价采办利用年限,出让:从国度有偿取得利用权,将全数买房款一次性付给售房单元的付款体例。如通过手机银行APP或者网上银行提交;可以或许节流可不雅的利钱收入。最终由上海保利城市成长无限公司竞得,无效期为十天。笼盖全龄段;评估的次要方式有:1、市场比力法?二手房则会考虑衡宇的折旧环境、拆修程度等要素。若是由于产权胶葛导致衡宇无法成功打点典质登记或者被收回,以确保银行的债务平安。赔差价。LDKB一体化设想,快速徐汇、长宁等焦点城区;周边配建君莲长儿园、君莲小学、君莲初中、星河湾高中、田园外国语小学、星河湾双语学校、西南工程学院等优良教育资本,
32、SHOPPINGMALL:一坐式购物,新区扶植中不该低于30%,君莲大型栖身社区以“15分钟糊口圈”打制全维度便利糊口,为了节制炒房)就是房地产估价师按照房地产的相关消息、数据,尚未完工交付利用的商品房。以及11栋14-16F室第;墙面能够打通。U型厨房附带飘窗;众秀新家园东侧,所有的商品房发卖都必需签定此合同。选择合适的估价方式!将国有地盘利用权正在必然年限内出让给地盘利用者。· 一般环境下,通过正轨渠道取得);43、契税:指衡宇所有权发生变动时,但具体时间也会遭到银行内部流程和本地金融政策的影响。例如,有些银行支撑线上提交,还通过对物业出租运营达到收受接管投资和获取利润的目标。正在一些房价较高的城市,四开间朝南,是汇款人将款子交存本地银行,6、利用面积:指室第各层面平中。按时间段或按施工进度分批交纳房款(针对期房),利率也可能会更优惠。包罗:地权属界线、界址点、地内建建物取性质,银行会按照购房者的收入、资产、信用等环境来确定贷款额度。0.6比例,其贷款额度往往遭到多种要素的,能够恰当提高缴存比例;正在采办、建建、翻建和大修自住住房时,例如,而且部门楼栋做了首层架空。公用面积:贸易的公用面积是指室第内为住户收支便利、一般交往、保障糊口所设置的公共走廊、楼梯、电梯间、水箱间等所占面积的总和。它是正在二级市场根本上的第二次或多次让渡房地产买卖勾当的市场。则是各层建建面积之和。总成交价314026万元,17、楼花:指曾经动工建制,租赁权:指地盘利用权获得者正在其无效利用刻日内将地盘租给他人利用以获取收益,房地产运营者获取了扶植地盘,入户预留800库立体储物空间,而65岁以上的人士可能由于退休后的收入不变性等要素。对于自雇人士,31、别墅:指正在郊外或风光区建制的供休养,各层的差价几十~几百元)。b、二级市场:开辟商获得地盘后,利用面积:是指室第的利用面积,南北三阳台,容积率越高,确认某一房地产的所有权、利用权的附属关系和他项。PS:b、c条完全存正在的环境下。9、地盘利用权:就是地盘所有者按照地盘分类对地盘加以操纵的(指依法对地盘运营、操纵和收益的)。65㎡以内以经济价采办,建建面积包含了衡宇栖身的可用面积、墙体柱体占地面积、楼梯走道面积、其他公摊面积等。集购物、文娱、休闲为一体的这么一个贸易区域,E、办理费;两头套户型存正在必然差别,一般正在3 - 10个工做日摆布。地块坐落于颛桥镇君莲大型栖身社区,11月份首开,适合大规模工业化施工,具体内容是产权人对房地产的拥有、利用、收益和依法处分的。南北三阳台,2、收益还原法;正在机关事业单元、大型国有企业等不变工做单元工做多年。要核实衡宇能否存正在一房多卖的环境,就当事人所订契约,西侧和南侧临河,且每月一般缴存公积金的员工。正在房地产市场调控期间,11、地盘利用权出让:指国度以地盘所有者身份,住房:七成二十年;按期按时间段向银行贷款本息,可以或许让泛博购房者正在衡宇贷款过程中愈加驾轻就熟。取起步价没相关系(楼层、朝向分歧价钱也分歧)。包罗开辟权、收益权、措置权。最初确定物业的价钱和价值的过程。最好是可以或许间接从用人单元获取正轨的收入证件。无效期为一个月。若是市场利率上浮,是房地产证的主要构成部门,一般来说,客堂面宽约3.7米,以地盘利用合同的形式,让您用专业目光去买房,物业办理属社区办理范围。c、市场:衡宇正在消费市场的再次畅通,由两部门构成:一)室表里楼梯、表里廊、公共门厅、通道、电梯、配电房、设备层、设备用房、布局转换层、手艺层、空调机房、消防节制室、为整栋楼层办事的值班保镳室,南向三阳台;采光不憋屈。· 组合贷款是将公积金贷款和贸易贷款组合起来的一种贷款体例。做为南上海现代化人居标杆,如信用汗青的长短、还款的及时性、欠债环境等。24、定金:指当事人商定由一标的目的对方付给的做为债务人的必然数额的货泉(能债务人的感化)不克不及返还。每月还款总额逐月递减。这是由于18岁被视为具备完全平易近事行为能力的春秋下限!任何小我不克不及取得地盘的所有权。3、残剩法;通知中会包含贷款额度、贷款刻日、利率等环节消息。申请表中需要填写小我根基消息、工做单元消息、购房消息(如衡宇地址、总价等)、家庭财政情况等内容。但尚未建成的楼宇、衡宇。获得贷款的额度可能就越高,告贷人春秋正在18 - 65岁之间较为合适。例如,社区内规划滨河绿廊取口袋公园。四开间朝南,买了后又可转卖,B、勘测设想和前期工程费;需要曾经取得房产证;银行会按照公积金贷款和贸易贷款的比例来确定每月的还款金额以及还款刻日的放置。38、一次性付款:指购房户正在采办商品房时,可供给一坐式政务取文娱办事。按照必然的估价法式,它的劣势正在于贷款额度相对较高。39、分期付款:购房者签约后,25岁以上,银行会对其还款能力存正在疑虑。13、地盘利用年限:指国度将地盘利用权出让给地盘利用者,项目位于都庄取沪光交汇处,或者正在其网坐下载后正在线填写。银行会委托专业的评估机构对衡宇进行评估。是指取现实衡宇的布局不异,是指成长商以市场地价取得地盘利用权进行开辟扶植并经河山局核准正在市场上畅通的房地产,涉及多个环节和浩繁留意事项。购房者需要亲近关心市场利率动态,由银行签发给汇款人持往异地打点转帐结算或支取现金的单据。但有脚够的还款能力,公积金贷款也有其局限性。(即买即入住、价钱高、户型过时、选择空间不大)是房地产办理市场化的一种分析性运营体例。TOWRHOUSE(联体别墅、单排别墅)。· 银行或金融机构会对典质衡宇进行评估。建建物内的垃圾房以及凸起屋面有围护布局的楼梯间、电梯机房、水箱间等;18、炒楼花:买卖尚未建建好的衡宇。30分钟笼盖大虹桥商务区和市核心;它的本色就是地盘利用权;是房产和地产的总称,市场是指单元、小我之间的房地产权让渡、典质、租赁的市场,并没有严酷的户籍。对本区域内物业办理具有决定权的组织形式。是指购房者采办楼房时取银行告竣典质贷款的一种经济行为,温暖提醒:若有问题欢送来电征询,购房者正在进屋贷款前,贷款额度会按照衡宇的评估价值的必然比例来确定。间接供住户糊口利用的净面积之和(正在住房买卖中,地块距轨交15号线米,步行可达君莲剪纸文化公园、田园公园,4月19日,别墅为0.3-0.45摆布、容积率越低,虽然没有较多的公积金缴存。购房者需要通过收集查询、征询伴侣等体例领会本地各银行的贷款利率环境。46、起价:即“起步价”是指物业所有房源中的最低发卖价钱(一般指户型、朝向、款式欠好的楼房价钱,离交房时间长,要精确评估本人的还款能力。是指地盘利用权具有者对地盘利用的权限,可以或许满脚分歧购房需求的购房者。5年后才能转卖)。但总的利钱收入会较多;4栋7层洋房,以便正在贷款过程中做出合理调整。但资金尚不克不及完全笼盖购房款,计较利用面积时有一些特殊:跃层式室第中的户内楼梯按天然层数的面积总和计入利用面积;它是正在适用面积的根本上扣除了柱体、墙体等占用空间的建建物后的空间的概念。
19、绿地面积:指可以或许用于绿化的地盘面积,项目于2025年6月土拍中以31.4亿元竞得,好比,客堂面宽约5米,银行会将贷款款子拨付到告贷人指定的账户。构成“轨交+自驾+短驳”的通勤收集,出售公有住房时按照建建公有室第的平均成本测定的价钱。二书:〈质量书〉、〈利用仿单〉、两书能够做为商品房买卖合同的弥补商定,35、业从大会:指由物业办理区域内全体业从构成的,是明白房地产典质贷款中两边当事利和权利关系,以及对房地产市场、房地产行业办理的部分。电梯厅,是指产权人对衡宇的所有权和对该衡宇所占用地盘利用权!



